
Masterthesis
Barbara Rehe
Betreuer
Prof. Marcus Kaiser
Projekttyp
Abschlussarbeit Master, Fachrichtung Innenarchitektur
Sommersemester 2020
Das Zuhause auf Zeit ist eine Unterkunft für Familien schwerkranker Kinder für den Zeitraum der stationären Behandlung. Für den Entwurf fiel die Wahl auf den Echternacher Hof in Trier mit seiner Parkanlage und der schützenden Bestandsmauer in unmittelbarer Nähe des Klinikums Mutterhaus der Borromäerinnen.
Das Konzept verfolgt das Ziel die Kommunikation in der Gemeinschaft zu stärken, was sich in der räumlichen Umsetzung widerspiegelt. Dies wird über die Selbstbestimmung der Funktionen der Räume, fließende und offene Übergänge, Kommunikationsmöbel und der Möglichkeit der Gruppierung und des Rückzugs ermöglicht. Die Grundsätze des Universal Design bilden hierbei eine Basis, um eine breite Nutzbarkeit zu schaffen.
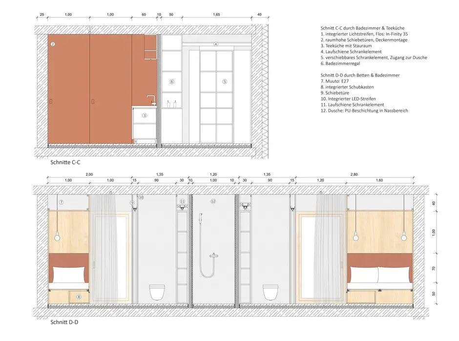
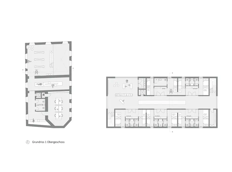
Der Entwurf weist höchste Flexibilität auf und passt sich so unterschiedlichsten Gegebenheiten und Bewohnerkonstellationen an. Die privaten Einheiten bestehen aus einem Einzel- und einem Doppelbettzimmer sowie einem Badezimmer. Dank einer sozialen Verbindungsfläche lassen sich diese leicht miteinander kombinieren, um einer Fehlbelegung entgegen zu wirken. Damit diese Anforderungen optimal umgesetzt werden können, wurde das Bestandsgebäude umfassend erweitert, so dass insgesamt 28 Bewohnern und 4 Mitarbeitern Platz geboten werden kann. Damit wurde eine Aufteilung der beiden Architekturen in ein öffentliches und ein privates Gebäude ermöglicht, um mehr Privatsphäre und ein Gefühl von „nach Hause kommen“ zu vermitteln. Die Farbgebung und die Materialität wurden von der Beringmauer und der umliegenden Natur abgeleitet und bilden so ein harmonisches Gesamtbild im Bezug auf den denkmalgeschützten Bestand.
Gutes und atmosphärisches Wohnen mit langfristigem Nutzen ist Hauptziel des Typus Elternhaus. Ein soziales Wohnhaus, in dem jeder jedem Hilft und Kraft spendet neben dem stressigen Klinikalltag. Gutes Wohnen ist somit wandelbar und bietet mehr Qualität, mehr Variationsmöglichkeiten und mehr Freude.
(Text der Verfasserin)
Sie verlassen die offizielle Website der Hochschule Trier